English
English
हिन्दी
Français
Deutsch
Español
العربية
Русский
日本語
Português
Italiano
עברית
中文
한국어
ไทย
Tiếng Việt
Bahasa Indonesia
Bahasa Melayu
Kiswahili
አማርኛ
isiZulu
Hausa
The Aerospace Fuel Supply System is a critical component of modern propulsion test cell equipment, ensuring precise delivery and regulation of fuel during engine testing and aerospace validation programs. Integrated with an advanced aviation fuel conditioning system, it maintains optimal temperature, pressure, and cleanliness of jet fuel before entering the test loop. The aircraft engine fuel test rig enables performance evaluation of fuel pumps, valves, and control units under simulated flight conditions. Featuring a fuel metering and regulation unit, jet fuel filtration skid, and aviation fuel flow metering system, it ensures accurate flow measurement and contamination-free fuel delivery. Designed for reliability and safety, the aviation fuel control system and fuel handling skid support seamless testing of jet engine fuel delivery systems and aircraft test fuel management setups. These systems collectively enhance efficiency, precision, and safety in aerospace fuel testing and engine development environments.

Aerospace Fuel Supply System

About

The Aerospace Fuel Supply System by Neometrix Defence Limited is a precision- engineered fuel conditioning and delivery platform developed for aero-engine and propulsion test cells. It supplies aviation turbine fuel to engines under test at precisely controlled pressure, flow, and cleanliness, enabling accurate measurement of fuel consumption, combustion efficiency, and control-system performance. Built entirely from stainless steel and equipped with redundant pumps, dome-type pressure regulators, FAUDI filtration, KRAL metering, and PLC-based automation, the system ensures a stable, contamination-free, and safely regulated fuel feed during endurance, performance, and functional testing of aircraft engines and auxiliary power units. It represents Neometrix’s commitment to engineering precision, reliability, and safety in every test environment.
No Image

Image Gallery

Technical Details

Parameter Specification
Working FluidAviation Turbine Fuel (ATF) / Jet A-1 / Kerosene
Flow Rate (max)500 LPM
Working Pressure0 – 10 bar
Design Pressure12 bar
Operating TemperatureUp to 45 °C
Pump TypeCentrifugal, SS316 construction
Motor Rating18.65 kW, 415 V, 3 phase, 50 Hz, IE2 FLP
Filtration Level100 µm (pre-filter) + 1 µm (final filter)
Filter MakeFAUDI / Equivalent Coalescer Separator
Flow Meter TypePositive Displacement (KRAL / Equivalent)
Flow Accuracy± 0.2 % of reading
Pressure RegulationDome-type 0 – 10 bar (Hale Hamilton / Eqv.)
Emergency Tank Capacity1500 L SS316 vessel
Pressurisation45 kg N₂ cylinder with regulator
Piping MaterialSS316 seamless pipe and tube
Valve TypesButterfly, Ball, Check, Solenoid (SS316)
Valve RatingPN 10 / Class 150
InstrumentationWIKA gauges, DP indicators, flow switches
AutomationPLC/SCADA interface (4–20 mA signals)
Power Supply415 V AC ±10 %, 50 Hz, 3 phase
Noise Level< 75 dB(A) @ 1 m
System ProtectionOver-/under-pressure, filter clog, flow failure
Compliance StandardsASME B16.5 / ASTM A351 / IEC 60079 / ISO 9001 / ISO 4406
• Aero-engine and APU test cells
• Gas-turbine and UAV propulsion testing
• Combustion and fuel-system R&D labs
• High-accuracy fuel-meter calibration benches
• Aviation fuel conditioning and circulation systems
   
        

Key Features

  • Aerospace-grade pressure and flow precision.
  • Dual redundancy and emergency nitrogen backup.
  • Multi-stage filtration for sub-micron cleanliness.
  • Real-time monitoring and data-logging capability.
  • Modular, easily transportable construction.
  • Full flame-proof safety compliance.
  • Long service life with minimal maintenance.

Media Gallery

Video Gallery

Download Gallery

×

Enquire Now

and we will get back to you.

Details

1. Introduction
In aerospace and propulsion testing, fuel delivery precision defines the integrity of performance data. Every engine test depends on the ability to deliver fuel at the right pressure, temperature, and purity — consistently and safely.

The Aerospace Fuel Supply System from Neometrix Defence Limited is engineered to deliver aviation-grade fuel at stable pressure, controlled flow, and uncompromising cleanliness, replicating real-flight conditions in a ground test environment.

Developed for engine test cells, APU facilities, and advanced combustion research centers, this fully modular system integrates hydraulic, pneumatic, electrical, and automation disciplines to ensure flawless fuel management. From dual redundant pumps and dome-type regulators to aerospace-standard filtration and flow metering, every component is designed for reliability, accuracy, and safety.

The result is a compact yet comprehensive solution that transforms test-stand fuel handling into a precisely controlled, contamination-free, and data-synchronized process.

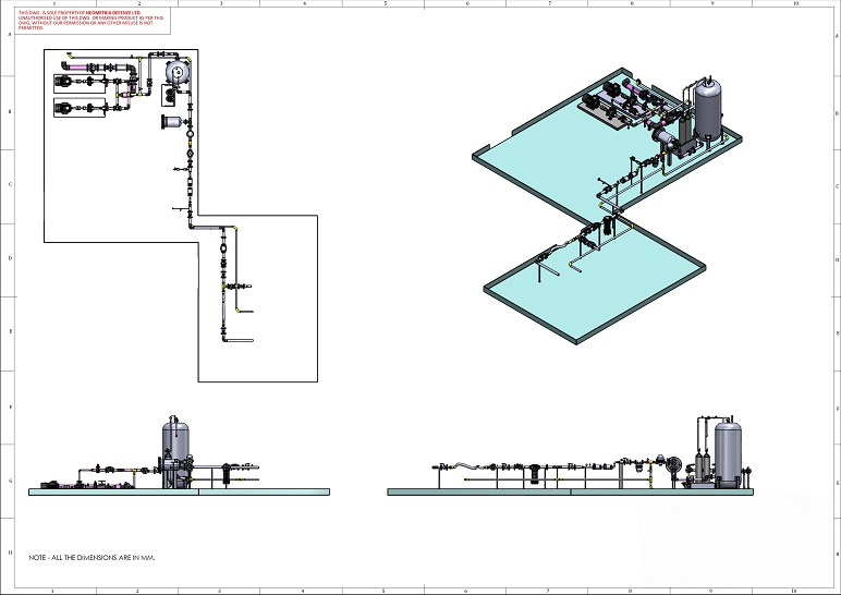
2. System Overview
The Aerospace Fuel Supply System is a fully integrated, skid-mounted installation for Aviation Turbine Fuel (ATF), Jet A-1, or kerosene service. It is designed for single- or multi-engine test environments and ensures continuous operation under all load conditions.

Subsystems
1. Fuel Pumping Module – Generates and maintains flow and pressure from the main fuel source.
2. Emergency Supply Module – Provides nitrogen-pressurised backup during pump or power failure.
3. Pressure Regulating Module – Maintains stable downstream pressure for accurate testing.
4. Fuel Metering Module – Measures flow and consumption with high precision.
5. Final Filtration Module – Ensures absolute fuel purity at the engine interface.
6. Interconnection Network – Stainless-steel piping and flexible hoses for seamless module integration.

Each skid is fabricated from SS316/SS304, passivated for fuel compatibility, and equipped with drip trays, lifting lugs, and earthing points for operational safety and mobility.

3. Functional Description
Fuel Pumping Module
• Dual centrifugal pumps (Kirloskar / Mapex type) rated for 500 LPM @ 7 bar, one duty and one standby.
• Driven by 18.65 kW, 415 V, 50 Hz flame-proof motors (IE2 efficiency).
• Wetted components in SS316, with mechanical seal and deep-groove bearing assemblies.
• 6-inch FAUDI basket strainer (100 μm) with drain valve, air vent, and clog indicator.
• Isolation and non-return valves (AIRA make) plus suction vacuum gauge for monitoring.
• Fully skid-mounted with vibration isolation and flexible coupling.

Emergency Supply Module
• 1500 L SS316 pressure vessel, designed for 8 bar working / 12 bar hydrotest.
• Nitrogen pressurisation via 45 kg N2 cylinder and precision regulator.
• Includes pressure relief valve, dual pressure switches, level transmitters, and safety interlocks.
• Automatically activates upon pressure loss to maintain uninterrupted engine fuel feed.

Pressure Regulating Module
• Hale Hamilton dome-type regulator, 0 – 10 bar range with ± 0.1 bar stability.
• Dual WIKA pressure transmitters and analog gauges for redundancy.
• Integrated relief and bypass valves allow maintenance without system shutdown.

Fuel Metering Module
• KRAL positive-displacement flow meter, 600 LPM capacity, ± 0.2 % accuracy.
• Analog (4 – 20 mA) and pulse outputs for PLC or DAQ integration.
• Factory calibrated and ISO/IEC 17025 traceable.

Final Filtration Module
• FAUDI coalescer-separator assembly with dual-stage filtration.
• 1 μm particulate coalescer + water-separator elements (MIL 4-727 / 60.644-727DM).
• Equipped with differential-pressure indicator, electrical clog alarm, and drain port.
• Produces fuel cleanliness better than ISO 4406 Code 15/13/10.

Instrumentation and Automation
• Pressure, flow, and level sensors across all modules.
• Flame-proof solenoid valves with limit switches.
• PLC/SCADA-ready control panel for local or remote operation.
• Safety interlocks for over-pressure, low-pressure, dry-run, and filter clog conditions.

4. Design & Construction
Aspect Specification
MaterialsSS316 / SS304 (ASTM A351 / A276)
SealingPTFE / Viton, ATF-compatible
ConnectionsASME B16.5 Class 150 flanges
WeldingTIG, full-penetration, dye-checked
Electrical RatingEx-d flame-proof, IP65
MountingModular skids with drip tray, drains, and earthing
Surface FinishPickled + passivated for hydrocarbon service
5. Quality Assurance & Testing • Full material traceability and certification review. • Hydrostatic tests at 1.5× design pressure for all tanks and lines. • Pneumatic leak tests and visual weld inspections. • Functional trials for flow, pressure, and automatic switching. • Electrical safety testing for insulation and earthing continuity. • Factory Acceptance Test (FAT) with complete documentation and calibration records. 6. Safety & Maintenance • Dual pump redundancy with automatic changeover logic. • Overpressure relief and venting provisions on all pressure lines. • Explosion-proof electrical hardware with continuous earthing network. • Quick-access filter elements and isolation valves for easy maintenance. • Drain, sampling, and purge points on every module. • Supplied with detailed Operation & Maintenance Manual, P&ID, and spares list. 7. Technical Specifications
Parameter Specification
Working FluidAviation Turbine Fuel (ATF) / Jet A-1 / Kerosene
Flow Rate (max)500 LPM
Working Pressure0 – 10 bar
Design Pressure12 bar
Operating TemperatureUp to 45 °C
Pump TypeCentrifugal, SS316 construction
Motor Rating18.65 kW, 415 V, 3 phase, 50 Hz, IE2 FLP
Filtration Level100 µm (pre-filter) + 1 µm (final filter)
Filter MakeFAUDI / Equivalent Coalescer Separator
Flow Meter TypePositive Displacement (KRAL / Equivalent)
Flow Accuracy± 0.2 % of reading
Pressure RegulationDome-type 0 – 10 bar (Hale Hamilton / Eqv.)
Emergency Tank Capacity1500 L SS316 vessel
Pressurisation45 kg N₂ cylinder with regulator
Piping MaterialSS316 seamless pipe and tube
Valve TypesButterfly, Ball, Check, Solenoid (SS316)
Valve RatingPN 10 / Class 150
InstrumentationWIKA gauges, DP indicators, flow switches
AutomationPLC/SCADA interface (4–20 mA signals)
Power Supply415 V AC ±10 %, 50 Hz, 3 phase
Noise Level< 75 dB(A) @ 1 m
System ProtectionOver-/under-pressure, filter clog, flow failure
Compliance StandardsASME B16.5 / ASTM A351 / IEC 60079 / ISO 9001 / ISO 4406
8. Key Advantages • Aerospace-grade pressure and flow precision. • Dual redundancy and emergency nitrogen backup. • Multi-stage filtration for sub-micron cleanliness. • Real-time monitoring and data-logging capability. • Modular, easily transportable construction. • Full flame-proof safety compliance. • Long service life with minimal maintenance. 9. Applications • Aero-engine and APU test cells • Gas-turbine and UAV propulsion testing • Combustion and fuel-system R&D labs • High-accuracy fuel-meter calibration benches • Aviation fuel conditioning and circulation systems 10. Conclusion The Aerospace Fuel Supply System represents the pinnacle of precision fuel handling for engine and propulsion test environments. With stainless-steel construction, redundant pressurisation, dome-type pressure control, FAUDI-KRAL filtration and metering, and intelligent automation, it guarantees a stable, contamination-free, and accurately metered fuel flow under all conditions.

Similar Products

Share This Page

move to top arrow